联系人:武经理
手机:13933744225
金彩汇电话: 0319-4786765
金彩汇传真: 0319-4845306
邮箱: 776150030@qq.com
网址:djznzs.com
金彩汇地址:河北省邢台市新河县城北工业区
金彩汇内蒙拱形铸铁闸门厂家价格从小型的600多元一套到近2万元一套的都有,瑞鑫水工专注水利闸门近20年,源头大厂,报价更低,售后可靠,支持定制,货到结款,安心选购!

一、内蒙拱形铸铁闸门介绍
金彩汇内蒙拱形铸铁闸门通常是指迎水面是拱形的闸门,被广泛用于城市给水排水、冶金、石油、化工、灌溉,电力、纺织等行业水处理构筑物上,以实现流量和液面水位的控制是给排水和污水处理的重要设备之一。
二、内蒙拱形铸铁闸门型号尺寸说明
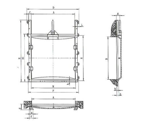
金彩汇内蒙拱形铸铁闸门型号表示通常写为PGZ,其中P表示平面,也就是说此种闸门为平面闸门的一种,G代表拱形,也是拱形的“拱”子的首字母,Z表示闸门的意思,规格跨度比较大,从小到200mm*200mm的到3.5米*3米的都有,其他规格型号的本厂支持定制生产。

三、内蒙拱形铸铁闸门结构原理说明
内蒙拱形铸铁闸门通常是由闸板、闸框、吊耳、导轨、压紧锲块(紧闭斜铁)等组件构成,其中闸框、闸板主要由灰口铸铁或球墨铸铁铸造加工而成,密封面采用精加工或镶铜来实现良好的止水效果,通过配型对应型号的螺杆启闭机或卷扬启闭机来做为驱动力使闸门在导轨上实现上升、下降或停留来,从而实现控制调节水流量大小。

四、内蒙拱形铸铁闸门的特点
金彩汇1、内蒙拱形铸铁闸门限于安装在露顶式和闸后止水水工工程中,比如渠道,水库,水电站,河道上使用;
2、在外形尺寸小于等于2.5米的拱形铸铁闸门大多采用单吊点,大于2.5米时多采用双吊点,也就是双吊点铸铁闸门。
金彩汇3、如果用于安装的孔口尺寸比较大的位置时候,拱形铸铁闸门也可以采用上下组合的形式来满足用户的需求,也就人们所说的组合式铸铁闸门;
金彩汇4、内蒙拱形铸铁闸门的材质有两种,一种为灰铸铁,另外一种式球墨铸铁;
金彩汇5、拱形铸铁闸门具有耐腐蚀性能好,因此也可以用户污水处理厂;
6、拱形铸铁闸门通常采用硬止水的方式,可以镶铜,也被称为拱形铸铁镶铜闸门或平面铸铁镶铜闸门;
金彩汇7、具有结构简单,安装方便,启闭灵活等优势特点。
五、内蒙拱形铸铁闸门安装要点:


备注:内蒙拱形铸铁闸门的详细外形安装尺寸,可参考本站《PGZ平面滑动铸铁闸门厂家规格型号大全》
六、内蒙拱形铸铁闸门采购指南:

总结:
金彩汇以上就是关于内蒙拱形铸铁闸门的内容了,其中包括了拱形铸铁闸门报价、简介、尺寸型号说明、结构原理、特点、安装要点、采购指南等内容,致电本厂,支持货到结款!